pic

Раздвижная противопожарная перегородка / серия FRM5444

Артикул: 71de1ab4719c
5.00/5

28 000 

В наличии, доставим бесплатно
Самовывоз – бесплатно
Монтаж доступен – от 3 500 ₽

Доставка по Новокузнецку

Стоимость доставки по Новокузнецку – бесплатно
подробнее

Способы оплаты

Оплата по счету для юр.лиц(работаем с НДС), картами или онлайн-переводом
все способы оплаты

Монтаж конструкций

Монтаж "под ключ" от 2 500 руб/м² . Имеем лицензию МЧС на проведение монтажных работ огнестойких конструкций.

Требуется консультация?

Поможем с подбором конструкций и подготовим коммерческое предложение в течении 40 минут.
Открыть чат с менеджером →

Примеры реализованных проектов

Раздвижная противопожарная перегородка / серия FRM5444

Вкратце про изделие

Раздвижная противопожарная перегородка серии FRM5444 от Fire-Max представляет собой воплощение передовых технологий в области огнестойкого остекления. Инновационная конструкция создается с применением современных алюминиевых сплавов повышенной прочности и термостойкого остекления нового поколения. Интегрированная система автоматического управления обеспечивает мгновенное срабатывание при возникновении пожара, что делает данное решение идеальным для современных коммерческих и общественных пространств. Применение цифровых технологий позволяет осуществлять дистанционный мониторинг состояния системы через облачные сервисы.

Передовые технологии в производстве

Производство перегородок FRM5444 основано на использовании роботизированных комплексов и систем искусственного интеллекта для контроля качества. Каждый элемент конструкции проходит компьютерное моделирование нагрузок с использованием технологии цифрового двойника. Лазерная сварка обеспечивает максимальную герметичность соединений, а плазменная обработка поверхностей гарантирует долговечность защитных покрытий. Система автоматизированного контроля параметров позволяет достигать точности изготовления до 0,1 мм, что критично для обеспечения надежного функционирования раздвижного механизма.

Инновационные материалы и решения

В основе конструкции лежит алюминиевый профиль с терморазрывом, выполненный из сплава нового поколения с добавлением наноматериалов. Огнестойкое остекление включает многослойные композиты с прозрачными керамическими вставками, способными выдерживать температуру до 1000°C. Уплотнители изготовлены из термостойких полимеров с памятью формы, которые при нагревании расширяются и создают дополнительный барьер для огня и дыма. Механизм раздвижения основан на магнитных подшипниках, обеспечивающих бесшумную работу и минимальный износ.

Характеристика Значение Преимущество
Предел огнестойкости EI 60-120 Максимальная защита
Звукоизоляция до 45 дБ Комфорт использования
Теплоизоляция 1,2 Вт/м²К Энергоэффективность
Прозрачность до 85% Естественное освещение

Цифровые технологии и автоматизация

Система управления перегородкой интегрирована с технологией «Умный дом» и может взаимодействовать с другими элементами противопожарной защиты объекта. Встроенные датчики температуры и дыма работают в режиме реального времени, передавая данные в центральную систему мониторинга. Искусственный интеллект анализирует паттерны использования и оптимизирует алгоритмы срабатывания для каждого конкретного объекта. Мобильное приложение позволяет контролировать состояние системы удаленно и получать уведомления о необходимости технического обслуживания.

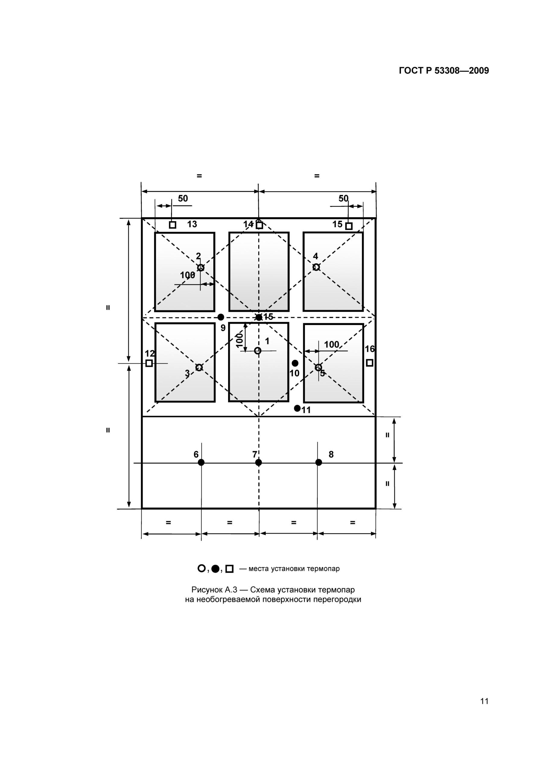
Согласно ГОСТ Р 53308-2009 «Конструкции строительные. Светопрозрачные ограждающие конструкции и заполнения проемов. Метод испытаний на огнестойкость», противопожарные перегородки должны обеспечивать нормируемые пределы огнестойкости при сохранении несущей способности, целостности и теплоизолирующей способности.

Современные противопожарные перегородки серии FRM5444 идеально сочетаются с другими элементами огнестойкого остекления. Комплексное решение может включать противопожарные двери той же серии для создания единого архитектурного ансамбля. Модульная конструкция позволяет легко интегрировать перегородки в существующие системы безопасности здания.

Экологичность и устойчивое развитие

Производство перегородок FRM5444 соответствует принципам зеленого строительства и стандартам экологической безопасности. Используемые материалы на 95% подлежат переработке, что минимизирует воздействие на окружающую среду. Энергоэффективные технологии производства позволяют снизить углеродный след на 40% по сравнению с традиционными методами. Долговечность конструкции составляет не менее 50 лет, что обеспечивает устойчивость инвестиций и снижает потребность в замене элементов.

Ширина проема, мм Высота проема, мм Максимальный вес, кг
1500-6000 2100-3500 до 500
6000-9000 2100-3500 до 750
9000-12000 2100-3000 до 1000

Основные преимущества современных раздвижных перегородок включают:

  • Автоматическое срабатывание при пожаре с временем реакции менее 30 секунд
  • Возможность ручного управления через мобильное приложение
  • Интеграция с системами «умного здания» и IoT-платформами
  • Самодиагностика и предиктивное техническое обслуживание
  • Энергонезависимая работа при отключении электропитания

Перспективы технологического развития

Дальнейшее развитие серии FRM5444 предусматривает внедрение технологий дополненной реальности для упрощения монтажа и обслуживания. Планируется интеграция с блокчейн-технологиями для создания неизменяемых записей о техническом состоянии и истории обслуживания. Разработка нанопокрытий с самоочищающимися свойствами позволит снизить эксплуатационные расходы. Соответствие требованиям СНиП 21-01-97 и ГОСТ 30247.1-94 гарантирует надежность и безопасность эксплуатации в течение всего жизненного цикла здания.

Доставка по Новокузнецку

 Стоимость доставки. Сроки  При заказе до.
 Бесплатно  15 дн.  до 12 ч.

Доставка по России и в отдаленные регионы

 Стоимость доставки. Сроки  При заказе до.
 Бесплатно  15 дн.  до 12 ч.

Детали

Огнестойкость

EIW-15, EIW-30, EIW-45, EIW-60

Профиль

Alutech

Размеры

Любые под заказ

Стекло

огнеупорное

Цвет

Любой по RAL

2 отзыва на Раздвижная противопожарная перегородка / серия FRM5444

5,0
На основании 2 отзывов
5 звёзд
100
100%
4 звезды
0%
3 звезды
0%
2 звезды
0%
1 звезда
0%
  1. Стас

    Хорошая раздвижная перегородка. Заказывали у данных ребят. Все сделали как надо и быстро.

  2. Игорь

    Сейчас не сдашь объект, если там не будут учтены противопожарные нормы и требования. Наши конструкции подошли без проблем

Добавить отзыв
Выберите свой регион
Запросить коммерческое предложение
Оформление заказа

Заполните форму заказа и мы свяжемся с вами в течение 15 минут в рабочее время.

Нажимая кнопку «Отправить заказ», вы соглашаетесь на обработку персональных данных и с условиями Политикой конфиденциальности.